Your Land. Your Legacy. Our Expertise.
    50 photos

    Coastal Sanctuary on Sidney Island - Southern Gulf Islands

    Vancouver Island & Southern Gulf Islands Listing No. 25062

    This 1,536 sq. ft. 3-bdrm, 2-bath home with gourmet kitchen & partially finished basement on 3.17 acres with 385 ft of oceanfront epitomizes the perfect escape for year-round or recreational off-grid living. Sunrises, sunsets & accessible oceanfront make this an outdoor living dream.


    Price
    Reduced $1,595,000

    Size
    3.17 acres ~ 385 ft oceanfront

    +43 photos

    Description

    The largest lot on the east side of Sidney Island, this 3.17-acre lot with 385 feet of oceanfront is the ideal coastal sanctuary to escape the mounting stress of today’s world. It epitomizes off the grid living, year-round or recreationally, with invigorating sunrises and stunning sunsets enhancing the breathtaking views across Haro Strait with Mount Baker as a backdrop.

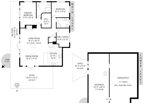
    The owners have lived full time in the 1,536 sq. ft. 3-bedroom, 2-bathroom home, since their build was complete in 2018. The open, light-filled layout features five skylights, fir accents and hickory hardwood floors. The gourmet kitchen with a 6-burner Wolf range, marble countertops, and stainless-steel appliances is a blend of elegance and function. The thoughtfully designed layout creates a seamless transition between living areas providing comfort and versatility.

    The main level includes an east-facing ocean view master suite, second bedroom, third bedroom or office with a Murphy bed, two sleek bathrooms and cozy propane fireplace complement the space. The half basement with a walkout entry, a Blaze King wood stove and on-demand water heater serves as laundry, second office, fourth bedroom, and/or rec space and the crawl space provide ample storage.

    This energy-efficient home boasts durable Hardie Board siding, metal roof, solar-powered electrical system, 13 kW generator, and a hydro generator from a seasonal creek. Water from the drilled well is treated with UV light and filters. 40,000 gallons of water, stored in tanks, is dedicated for irrigation and fire suppression.

    The expansive deck with a propane fireplace invites outdoor living, surrounded by flowers in summer, in Canada’s most temperate climate. The waterfront is easily accessible by a short ladder to launch kayaks and enjoy the beach area at low tide.

    Additional features include a woodshed, chicken coop to provide fresh eggs, and gardens with raised hügelkultur beds for sustainable living.

    Sidney Island is a private island. It is the most southerly Gulf Island and BC’s best oceanfront value. A rock breakwater protects its 67-slip community dock, moorage is part of strata fees, the 2,600 ft airstrip is an aviator’s dream, miles of sandy beaches and trails, super popular swimming hole, heritage orchard, full time island caretaker, 107 acres of conservancy zones, managed forest, and a real sense of community. The 1,343 acres of common property shared by the owners of the 111 lots on Sidney Island is larger than Stanley Park.

    Call Rich, 604-328-0848, to arrange a visit to see Sidney Island and this very special property.

    HIGHLIGHTS

    • Strata title ownership
    • 1,762 acres private property
    • 300 acres of strata lots
    • 1,343 acres common property
    • 11.6 acres Limited Common Property
    • 107 acres Conservation zones
    • No public access to the strata owned portion of the island
    • No time requirement for building
    • RVs permitted for 4 years before building
    • Precious conservation areas
    • Breakwater and 67-slip communal dock in Miner’s Bay
    • 2,600 ft grass airstrip, best in the Gulf Islands
    • Miles of sand beaches
    • Excellent network of roads
    • Managed sustainable forest
    • Cellular telephones work on most of the island
    • Full time Island Caretaker

    EQUIPMENT

    The Strata Corporation equipment consists of an excavator, dump truck, fire truck, ambulance, tank truck, pickup truck, road grader and miscellaneous equipment, some of which is available to Strata owners on a rental basis.

    Location

    Sidney Island is at the southern end of the Gulf Islands between Vancouver Island and mainland British Columbia. It is about 19 km north of Victoria, 6 km southeast of Sidney on the Saanich Peninsula and 10 km from Roche Harbour on US San Juan Island.

    Access

    Access is by boat to the private 67-slip dock in Miners Bay or by plane to the 2,600 ft airstrip, both of which are the common property of the Sidney Island strata owners. Water taxi service is available from Sidney. Sidney Island is a private island, all visits must be arranged in advance. Call Rich to arrange a visit, 604-328-0848.

    Area Data

    Sidney Island

    Unique in British Columbia, perhaps the world, Sidney Island offers the rare combination of ownership of superb waterfront property with a model of sustainable forestry, limited development of common areas, precious conservation zones and miles of sand beaches. Blessed with a Mediterranean-like climate, warm summers, mild winters, and less than 30 inches annual rainfall. Not only is it one of the most picturesque, but also the last major undeveloped island in the Gulf Islands chain. From every part of the island there are breathtaking views. To the south the perennial snow-covered Olympic Range, to the east the perfect cone of Mt. Baker and the jagged peaks of the Cascades.

    With its wonderful natural habitat few places have as rich a variety of wildlife as Sidney Island, which includes:

    • fallow deer
    • black-tailed deer
    • bald eagles
    • Javanese peacocks
    • owls
    • hawks
    • turkey vultures
    • mink
    • woodpeckers
    • hummingbirds
    • great blue herons
    • river otters
    • a rich variety of songbirds, ducks, geese, and other waterfowl

    Offshore, the waters support a wide variety of sea life including salmon, halibut, other sport fish, an array of sea birds and waterfowl, seals, sea lions, orcas, and gray whales.

    The most important aspect of the development is that the privacy of the strata corporation lands was maintained, and the natural integrity of the island environment protected for the fortunate few who share in its ownership. It is a private island with no public access to the 1,760 acres of land owned by the strata corporation. The 1,343 acres of common property shared by the owners of the 111 strata lots is larger than Stanley Park.

    The result is an amazing diversity of properties with low, medium, high bank oceanfront, every possible exposure, varied topography, beautiful views, differing levels of privacy and a range of prices.

    The only land on the island not owned by the Strata Corporation is the northerly portion formerly the Sidney Spit Marine Park. In 2003 it became a national park and was renamed the Gulf Islands National Park Reserve. This area comprises about four hundred acres and encloses a broad lagoon of sheltered water bordered by a long spit of sand. Mooring buoys, a small government dock, and facilities for picnicking and camping are provided. The sandy beach with protected waters is excellent for swimming.

    GEOGRAPHY

    Both Sidney Island and neighboring James Island are geographically unique in that they are the only Canadian Gulf Islands composed almost entirely of quaternary drift deposits—unconsolidated sand and gravel deposited by glaciers thousands of years ago—which form the sandy coastline. The east side of the island is solid rock with no geo-technical setbacks required.

    Vegetation

    Sidney Island supports exceptionally lush and varied vegetation common to the south coastal climatic zone including Douglas fir, white fir, Garry oak, mock cherry, arbutus, red cedar, red alder, balsam, hemlock, aspen, yew, big leaf maple and flowering dogwood. Smaller vegetation includes Scotch broom, fireweed, gorse, wild roses, western fescue, orchard grass, salal, hawthorn, and a 50-tree orchard on the common land.

    Recreation

    Boating, flying, hiking the miles of trails and beaches, swimming in our wonderful swimming pond, fishing, prawning, crabbing, whale watching, kayaking, paddling, scuba diving, photography, bird watching, cycling, exploring, and cruising the Canadian Gulf Islands and the US San Juan Islands.

    History

    Originally named Sallas Island, in 1859 the Hudson Bay Company, hoping to attract settlers with a more British name, changed it to Sidney Island. Many years ago, the Island was purchased by a group of Victoria businessmen as a private hunting preserve. In 1981 the Island was purchased from the last two survivors of the original owners by Sallas Forest Limited Partnership. The subdivision into 111 strata lots was completed with titles registered in 2005; all the lots were sold in 2005 and 2006, and properties for sale since then are resales.

    Map Reference

    48°36'35.71"N and 123°16'55.25"W

    Tax Details

    3,207.72 (2024)

    Strata Fees

    $283.27 per month (2025)

    Zoning

    CD-2 Sidney Island Comprehensive Development Zone Capital Regional District and Islands Trust

    Legal

    Strata Lot 42, Section 4, Sidney Island, Range 1E, North Saanich District, Strata Plan V1S5122 together with an interest in the common property in proportion to the unit entitlement of the Strata Lot as shown on form 1 (see plan as to limited access)
    PID 026-297-680

    Maps & Plans

    +11 maps

    Maps & Plans

    Our property descriptions and geographical information are taken from the BC Assessment Authority, Land Titles Office, government maps and other sources. While LandQuest® does not guarantee the information, we believe it to be accurate, but should not be relied upon without verification. This communication is not intended to cause or induce breach of an existing agency agreement.

    Location

    Location